Diamondback Blenders
Our Tumble, In-Line & In-Bin Blenders ...

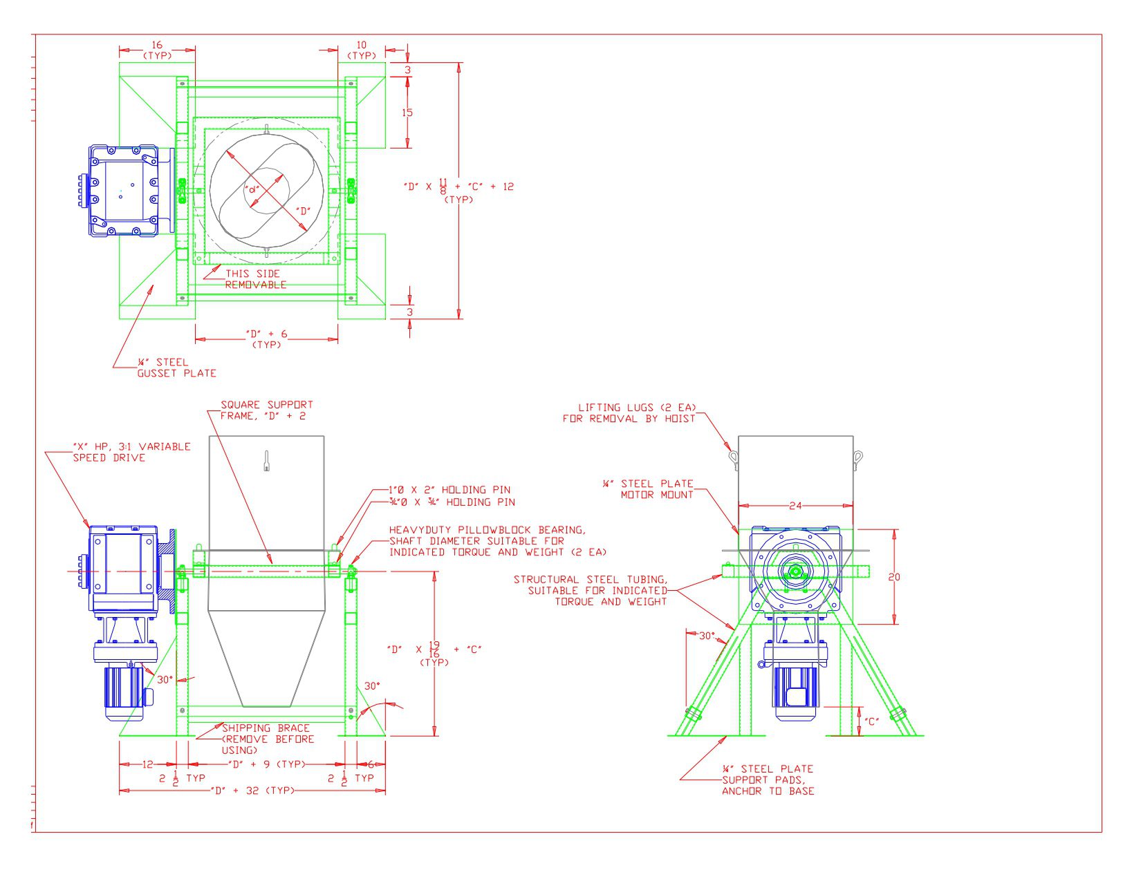
Tumble Blender

Diamondback Technology's tumble blender incorporates the award-winning technology of the Diamondback Hopper to enhance blender performance. Its unique motion creates a crisscross flow, eliminating dead zones and enabling efficient cross-flow. This blender achieves rapid bulk solids mixing, often in under 30 revolutions, even with cohesive materials prone to causing hangups in other blenders.

Additionally, it handles combinations unsuitable for mechanically agitated blenders due to demixing tendencies or particle size degradation. The detachable Diamondback Hopper section serves as an anti-segregation container for seamless feeding into the next process. By prefilling the next batch into a spare hopper connected to the blender, total batch time can be reduced to three to ten minutes.

Typical Applications

A group of five old fashioned metal cups.

Extruder Premixing

A large industrial machine with pipes and valves.

Tableting Press Feed

A row of large metal tanks in a warehouse.

Batch Compounding

A blue fan is on the side of a pipe.

Minor Ingredient Premixing

Features

  • Hangup-free anti-segregation bottom-to-top discharge

  • Optional, easily changed spare hoppers

  • Sizes ranging from 0.4 liters to 150-cubic-foot capacity

  • Optional intensifier bar available (usually not necessary)

  • Simple construction (no mechanical agitators) to minimize maintenance

Dynamics of the Diamondback Tumble Blender

The Diamondback Tumble Blender's innovative diamond shape facilitates rapid particle movement, allowing for hang-up-free discharge. It promotes swift mixing at both high and low rotational speeds due to complex velocity gradients and sudden changes in particle motion.

Tests demonstrate effective mixing across various materials, including those prone to demixing at low speeds. Even cohesive mixtures showed excellent results. The blender's anti-bridging outlet ensures smooth discharge of the mixture.

A large glass container on top of a metal stand.

In-Bin Blender

The Diamondback In-bin Blender utilizes one-dimensional convergence technology to create adaptable flow patterns, optimizing in-bin blending. It excels in blending large quantities of solids, from plastic pellets to coal. Custom-designed in-line blenders are available to suit specific materials and applications.

Typical Applications

  • Converting existing bins from storage to active blending

  • Smoothing cyclical variations over as much as two times the bin volume

  • Blending out-of-spec material and eliminating waste

  • Blending cohesive, free-flowing, and combination solids without hangups

  • Remixing segregated solids from pneumatic conveyor transfer

  • Blending multiple-density powders that segregate in other blenders

A drawing of the inside of an old boat.
A line graph with the number of volumes per year.

Features

  • No moving parts

  • Self-cleaning

  • Adjustable blender profile for optimum blender performance

  • Optional intensifier bar available (usually not necessary)

  • Stainless steel construction for consistently good results

  • Optional cost-saving epoxy-coated carbon steel

  • Easily converted to anti-segregation first-in-first-out flow

Diamondback In-Bin Blender Dynamics

Effective blending relies on the concept of differential retention time. The transparent demonstration model illustrates this process, where the topmost layer partially exits while retaining some material to blend with the rest. This ensures continuous blending as contents are discharged.

By adjusting the interior cylinder's position, you can customize the retention time from zero to twice the bin's volume. This adaptability suits various applications. For instance, it resolves segregation issues in glass batches loaded into discrete layers. The Diamondback In-bin Blender can also handle blending tasks with differentials up to 2.0, accommodating both large-scale and precise blending needs.

A large metal object sitting in the sand.